大村市古賀島町U様邸 2LDK+和室 | 楽らくホームズ(らくらくホームズ)|長崎県大村/諫早の新築平屋住宅専門店
 

長崎県大村の新築平屋住宅専門店|楽らくホームズ(らくらくホームズ)


施工事例
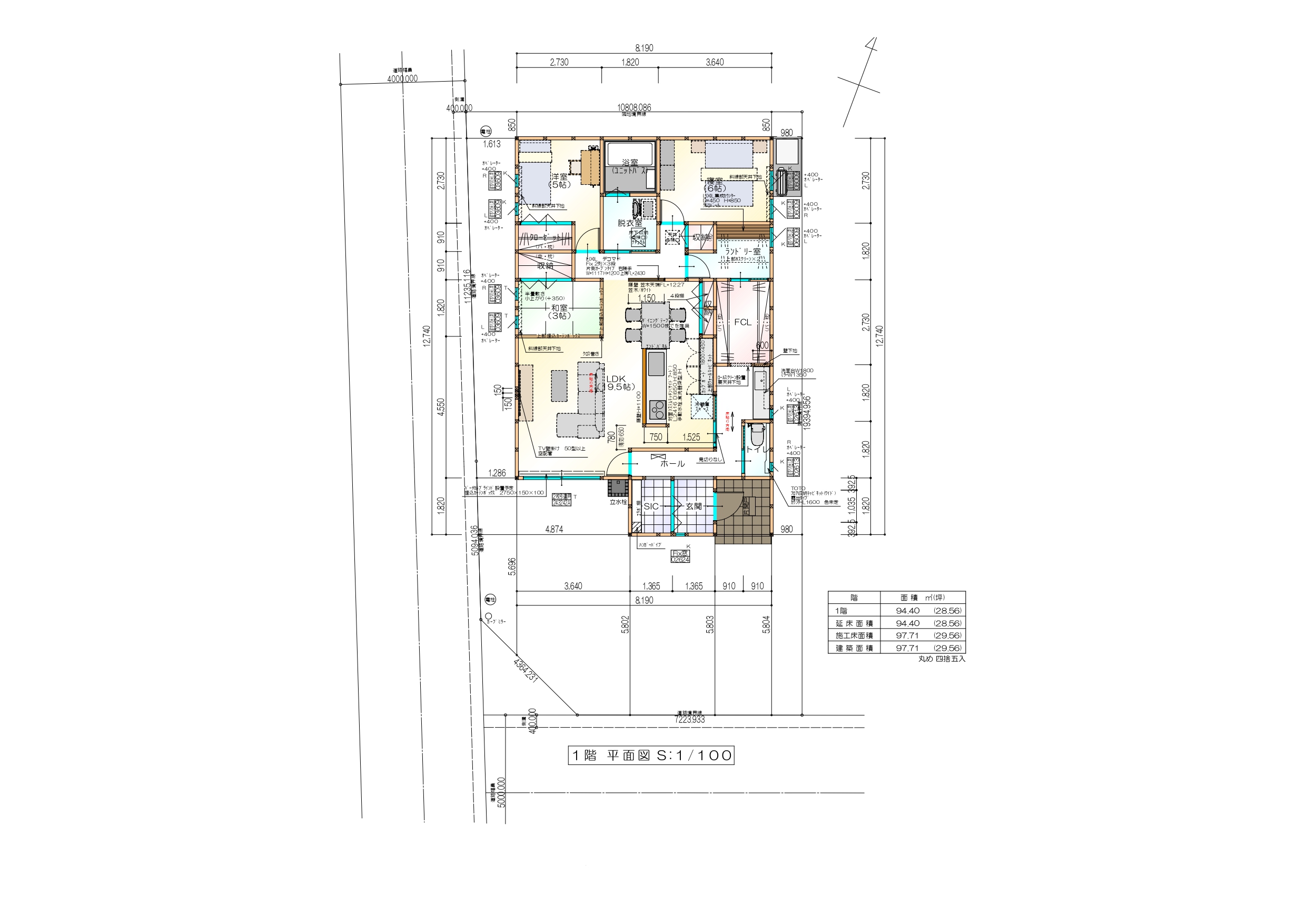
大村市古賀島町U様邸 2LDK+和室
イベント情報へ見学会予約へ 楽らくホームズ公式LINE
イベント情報見学会予約TOPへ